Если вы регулярно мониторите рынок недвижимости в мечте стать счастливым домовладельцем, то мы искренне вам сочувствуем, ведь это одно из самых трудных и муторных дел, которые приходится делать в жизни. Возможно вам стоит обратить внимание на небольшие домики, потому как маленький размер совсем не означает, что дом не может быть роскошным. Дизайнер Крис Хайнинг (Chris Heininge) нашел способ как превратить 26 квадратных метров в роскошное жилище, оборудование всем необходимым, от кухни и ванны, до спальни на втором этаже.
Фасад дома
Гостиная
Лестница на второй этаж
Спальня на втором этаже, где вы можете стоять в полный рост
Обратите внимание на двуспальную кровать
Кухня
Кухня включает все современные электроприборы, включая ЖК-телевизор, DVD-плеер, микроволновку, духовку, плиту, мини-холодильник и пр.
С другой стороны
В дополнение к большим окнам, пропускающим солнечный свет, по всему дому расположены светодиодные лампочки
Ванная комната
Включает в себя большой шкаф, который может быть переоборудован в сушилку
Ванна и унитаз
И снова вид снаружи
Дом можно запросто поместить на прицеп и отвезти в необходимое место, а уникальный дизайн крыши позволяет удалить потолочные панели, для более комфортной перевозки.
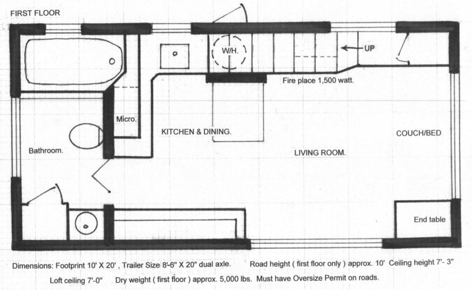
План первого этажа











