Студентам всегда было тяжело из-за отсутствия денег, но зато очень весело. Часто студенты покидают отчий дом уезжая в другой город, или даже страну, на обучение, так как приходится жить самостоятельно, а денег в обрез, то приходится крутиться как можешь. Шведские архитекторы разработали недорогие маленькие домики для студентов площадью 10 кв.м. Этот дом может использоваться не только студентами, но ещё и не слишком богатыми холостяками, мечтающими жить отдельно.

Архитекторы их Tengbom Architects, в сотрудничестве с производителем фанеры фирмой Martinsons и студентами из Лундского университета, представила проект дешевых и экологически чистых домов для студентов - Smart student units

Сейчас этот дом выставлен в шведском музее Virserum, но уже в 2014 году должны начать массовое производство таких домов

Это действительно компактное и очень удобное жилище.
Вид сзади

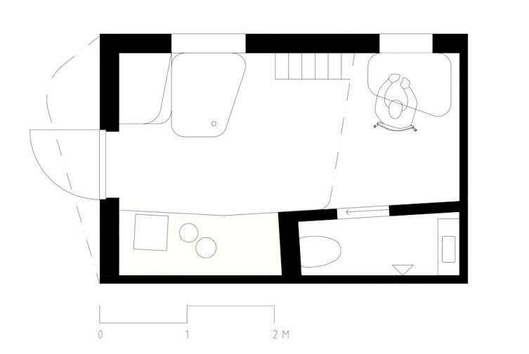
В нем находится спальня по лестнице вверх, кухня и туалет и рабочее пространство

Схема дома, вид сверху
Из-за того, что в строительстве используется клееная древесина, стоимость дома очень низкая




